
APTBH alu-profiel plafondgericht 200cm alu geanodiseerd aluminium
Gevonden bij 1 winkel vanaf
€ 65,34
(minder betalen?)
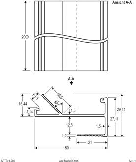
Aluminium gipsplaatprofiel APTBH voor lichtkoven, plafondmontage Het aluminium profiel APTBH wordt gebruikt voor indirecte verlichting via het Deck op lichtkoven. Het is geschikt voor gipsplaten met een dikte van 12,5 mm en LED strip tot 18 mm breed en max. 30 W per meter. Na de installatie is de LED strip niet meer zichtbaar vanuit de kamer. Die onderste Kante van het profiel is over een groot oppervlak geëgaliseerd met de gipsplaat en het stoffen inzetstuk en biedt een bijzonder goede grip dankzij het gegroefde oppervlak. Die kan worden geverfd in overeenstemming met het Deck en verdubbelt visueel het zichtbare oppervlak.